降本增效、高效建设——汾西县中医院改造项目的实践与思考
随着医疗技术的快速发展和医院评定标准的提升,老旧医院的问题逐步凸显了出来,科学合理的总体规划改造是促进老旧医院高效运营和可持续发展的前提。而老建筑的室内外功能改造、外立面改造等已然成为医院建筑改造必须面对的一个重要问题,对其现状规划布局模式和现存的典型问题进行研究,并结合实际情况规划设计改造,对于医院的可持续发展和提高人民医疗水平具有重要价值意义。本文以汾西县中医院改造项目为例,分析探讨老旧医院的改造思路与策略。
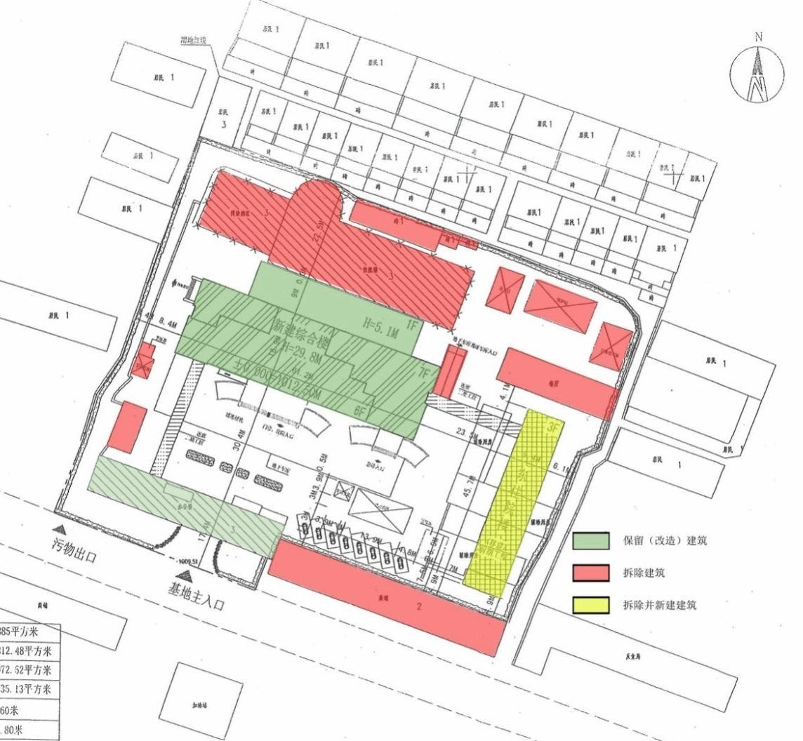
一、项目概况
项目地址位于临汾市汾西县人民医院旧址,占地面积10505㎡(约15.76亩),建成至今已十余年。现有建筑有综合楼、行政楼、东楼、旧住院楼、洗衣房、食堂、导管室(配电房)等, 建筑面积约16159㎡。

二、存在问题
由于建设年代较长,标准及布局均无法满现代化医院的使用要求,功能由人民医院改为中医院,建筑内部硬件设施陈旧,建筑排布杂乱,建筑外立面保温及构件脱落,门窗不符合节能要求,部分楼栋为危房,院区内消防车道及消防设施不满足使用要求。


三、改造策略
1、调整建筑功能布局
首先原主楼建筑为人民医院综合楼,与中医院功能不一致;其次按照临汾市卫建委要求改造需满足二甲医院要求,对原建筑功能进行梳理及重新布局,现状医院建筑床位数50张,改造后中医院床位数80张。
首层功能为门诊大厅、药剂科、窗口、急诊、输液中心、影像中心、功能检査、中心供应、洗衣房 ,二层为门诊、检验中心、输血科、门诊手术室、康复治疗区、传承工作室等,三层为门诊、中医综合治疗区、治未病中心等,四层为血透中心、病房、护理中心,五层为病房、护理中心,六层为手术室及重症监护区。
2、完善建筑功能设计
为满足医院改造功能设计及二甲医院标准要求,新建一座三层医技后勤楼,一层主要功能为大厅、餐厅、食堂及换热站,二层主要功能为中医治未病科室、中医特色治疗科室,三层主要功能为中医康复治疗区。
3、交通组织
本项目通过拆除杂乱的危旧建筑,改造后总平面布置达到人车分流,交通流畅的效果,同时满足消防车道的设计要求。

4、建筑立面风格
改造前,建筑陈旧,风貌杂乱,本次更新后,建筑立面风格采用现代风格融合中式风格设计元素,表现出了庄重、优雅的双重气质,拥有对称、简约、格调雅致等特点,造型简洁,色彩搭配上注重对比,突出中医院的特有韵味。


5、降本增效
老旧建筑的室内功能改造工作,已经成为医院必须面对的一个重要问题。在改造过程中要因地制宜,利用和改造好建筑内部结构,充分考虑医院未来的长期规划,内部流线的优化,功能区域的整合与划分等因素。以最小的建设成本满足医护人员和患者对医疗功能、就诊环境等方面需求,提升就医体验和满足感。

四、结语
在既有医院建筑改扩建设计中,要全面统筹和协调功能与效果的统一,降本增效,做好总体规划设计,借鉴这种思考方法,从内到外综合考虑,对于开阔建筑创作思路和解决实际问题具有重要的意义。
