山西产业园区设计研究与案例分析 2023-12-22
发布时间:2023-12-22
内容:01.山西产业园区发展背景
山西是内陆省份,位于黄河中游东岸,华北平原西面的黄土高原上。省境四周山环水绕,与邻省(区)的自然境界分明。东依太行山,西、南依吕梁山、黄河,北依古长城,与河北、河南、陕西、内蒙古等省区为界。近些年山西对外公路、铁路、航空交通体系陆续完善,网格化密度持续加强,这也给山西新产业的布局发展带来了极大的支撑。

2017年2月25日,山西省委、省政府整合太原、晋中两市4个国家级、3个省级开发区及山西大学城共8个主要产学研园区,挂牌成立“山西转型综合改革示范区”,总规划面积约590平方公里。经过8年的发展,目前山西综改示范区形成中部核心区和潇河、阳曲南北两翼“一核两翼”的空间发展格局。同时山西转型综合改革示范区协同发展各地市的经济开发区,建构了全省领域的产业园区的快速建设周期。

02.山西产业园区现阶段发展
基于产业园的更新迭代,山西产业园正处于第二代产业园向第三代产业园推进的历程中,新产城融合的观念与城市更新的背景深度渗透,呈现出产业结构逐步多样化,在传统产业基础上发展高科技和新技术产业,以创新、创意为生产力,具有多元化的产业结构,大力发展生态型产业,逐渐建构都市型工业文明体系。同时产业园在城市功能方面更加具有都市化的服务功能,企业之间实现高度的资源共享,内部空间具有了开放性与系统性,景观化的造园意识逐步加强。

▲ 中安创芯半导体及电子设备制造项目组团布局图
在建筑形态“工业上楼”的模式标示着产业类型的升级与转化,利用少量的空间承载更多工业自动化的新产业,以小带大,不再是劳动密集型,二是技术密集型。一栋楼、一个组团就是一条产业生态,利用大数据云端将每个环节串联起来。

▲ 新产城融合·工业上楼九大维度
03.山西产业园设计的案例分析研究

▲ 中安创芯半导体及电子设备制造项目鸟瞰效果图
规划设计目标
1.打造以生产为主的高效便捷的园区产业。生产物流同人员流线、配套服务等流线相对分离,保证园区生产高效便捷。
2.提供定制化的“工业上楼”建筑产品,满足不同企业需要。本项目提供独栋式小型厂房、独栋式中型厂房、中大型厂房等多种类型产品,分别按企业需求提供不同的柱网、荷载、层高等参数,满足企业个性化需求。
3.完善配套,推动区域产业集群发展。充分发挥本项目丰富的产品线优势,整合周边项目资源,完善项目配套设施推动“产、学、研、展、商”区域产业集群发展。
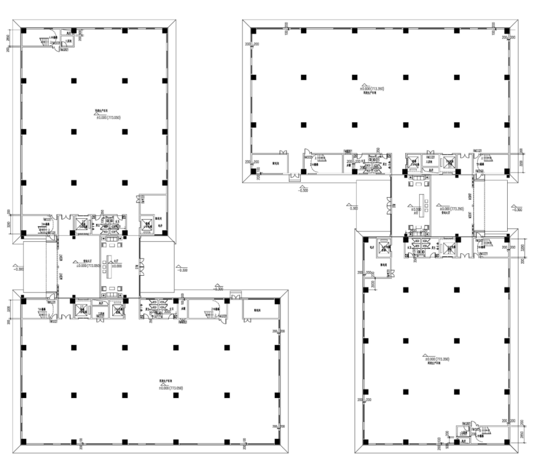
总体布局设计

▲中安创芯半导体及电子设备制造项目总图
配套宿舍、商业、研发办公等功能布置在用地中部,生活区从西侧直接进出;各种类型厂房按小型、中型、大型分组团布置在用地南侧、北侧,厂房区域从东侧、南侧、北侧直接进出。功能分区明确、各种流线清晰。建筑布局既考虑了园区的整体形象,又保证了生活配套区的采光、通风、日照,避免了噪声、工业“三废”(废气、废水、废渣)干扰,也兼顾了各种流线顺畅、便捷的需要。
产品研究
项目参数
1、轴网尺寸:小型厂房8.4mx8.4m,中型厂房9.0mx9.0m,大型厂房12.0mx10.0m,10.0mx10.0m;

▲轴网尺寸图示
2、建筑层高:小型厂房首层7.9m,标准层5.0m;中型厂房首层 7.9m,标准层5.4-6.0m;大型厂房首层7.9m,标准层6.0m;宿舍首层6.0m、标准层3.9m,办公首层6.0m、标准层4.2m。
电梯配置
电梯分类及要求
1.货梯:通常选用2t及3t货梯,梯速0.5-1.0m/s;5t货梯,梯速 0.5m/s;
2.客梯:通常选用1.0t或1.6t客梯,梯速1.75m/s;
3.消防梯:通常选用1.0t或1.6t电梯,梯速1.75m/s 需满足60s到顶,消防梯多和客梯合用;
电梯选用标准
1.货梯按总建筑面积每6000-7000㎡选用一台;
2.客梯按总建筑面积每5500-6500㎡选用一台;
3.客货梯比例可根据项目情况选取,偏生产类项目可按客货1:3选取,偏办公类项目可按客货3:1选取,货梯2t梯和3t梯可按2:1选用,部分项目要考虑一台5t货梯。
本项目配置标准
小型厂房:3.0t货梯1部,1.0t消防梯兼无障碍客梯1部;
中型厂房:4.0t货梯2部,2.0t货梯2部,1.0t消防梯兼无障碍客梯1 部;
大型厂房:3.0t货梯2部,2.0t货梯4部,1.0t消防梯兼无障碍客梯2 部;
荷载及层高
建筑层高:首层6M-6.9M,2-4层4.5-6M;
建筑荷载:首层2t/㎡,2-4层1t/㎡。
空调设计
小型厂房分层集中设置多联机;
中型、大型厂房每层预留分体机,同时分层或在屋顶集中设置多联机。
卸货平台设计

▲卸货平台示意图
1.卸货平台对于工业建筑功能而言极为关键,涉及物流效率,应根据产业进出货物的吞吐量及货物进出规格、重量作精细化设置。
2.卸货平台设置要求生产类厂房均需设置。
3.卸货平台长度需满足一定数量卸货位需要,卸货位可参考客货梯总台数。
4.卸货平台高度一般项目取800-1200mm,根据货车高度设置活动尾板。
5.卸货平台坡道如有场地高差,可将卸货平台同正负零取平,货车停在低处;平场地可将平台抬高,再用1:8坡道通至地面。
6.卸货平台宜设置遮雨篷。
吊装口设计

▲吊装口立面图
厂房立面设计配备吊装平台,解决大件设备上楼问题。
吊装口:相关工程设计应符合《建筑工程施工起重吊装规范 JGJ276-2012》及《建筑施工高处作业安全技术规范JGJ80》厂房每层宜预留吊装口并设置于走廊端头位置,吊装口宜控制高度不小于3.5米,宽度不小于4米。为满足平日的安全管理需求及便利货物装卸,宜设置可随时拆卸的栏杆或落地窗,若设置栏杆,其高度离地应至少1.5 米。

▲吊装口实景图片

▲吊装口节点详图
1.吊装口是大型生产吊装口设计设备、超重设备及超重货物等“工业上楼”建筑的竖向运输唯一通道。
2.吊装口位置数量: 每层设置1处,最好能结合货梯厅或外廊设置。
3.吊装口尺寸: 宽度不小于4m,高度不小于3m,需结合立面设计。
4.吊装口洞口做法:位于公共走廊或阳台处可设置为开敞式,采用可平开栏杆维护,开敞处需降板并设排水防止雨水倒灌室内;位于室内的需采用卷闸门维护。
中安创芯半导体及电子设备制造园区是服务中小型企业创新发展的产业园。项目主要以建设半导体及电子设备制造厂房、综合配套楼为基础,围绕新一代信息技术、智能仪器仪表制造、高端装备制造、新材料等示范区主导的新兴产业,利用综改示范区优惠政策,为企业搭建政、产、学、研、用、资、介多方位公共服务平台,提供仓储、物流、测试、人才、金融等配套服务,实现产业经济快速发展。
