城市驿站——太原市小型建筑设计 2024-03-12
发布时间:2024-03-12
内容:城市小型建筑多种多样,城市公厕作为重要的公共设施,其设计理念与功能对于提升城市居民的生活质量具有重要影响。应深入探讨城市公厕设计,尤其要注重人性化、实用性和创新性的融合,以满足公众需求,以点带线,由线成面影响城市风貌(见图1)。

图1 城市公厕效果对比

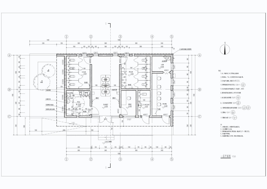
图2 城市公厕室内布局
创新性是推动城市公厕设计进步的关键因素。长期以来,公共卫生间被视为一个功能性明确的公共设施。由于注重隐私,传统的设计多为封闭性强的室内空间。此类设计难以为广大公众营造舒适的使用环境。随着时代进步和社会的发展,公厕特别注重与自然环境的系统化设计,试图突破传统卫生间室内空间封闭的限制,在满足私密性需求的同时,将自然元素重新引入室内,形成一个较为模糊的建筑边界(见图3)。通过模糊边界,最大程度地让使用者感受到室内外环境的相互融合,提升使用品质;巧妙的空间设计融入艺术元素,提升品质;室内运用智能化的照明系统营造舒适的视觉环境。

图3 城市公厕效果图
城市公厕设计是一个复杂的课题,需要我们在实践中不断探索和创新。只有在设计中坚持人性化、实用性和创新性的原则,才能创造出既满足公众需求又具有独特魅力的城市公厕。这样的公厕不仅能提升城市的形象和生活品质,也是城市文明进步的体现。
